State of Beer Private Events
PRIVATE EVENTS AT STATE OF BEER
State of Beer is a one-of-a-kind shop focusing on craft beer, natural wines, local ciders, and carefully-crafted fresh and local foods. This location offers options for to-go catering at the office to casual intimate rehearsal dinners or networking events at the shop.
LOOKING FOR TO-GO CATERING?
Choose between a variety of State of Beer sandwiches, salads, and more for your next gathering! For orders being placed at least two weeks in advance and for onsite events, refer to our catering menu and then submit your request or questions to our Events team.
For those hoping to submit a large order within two weeks of the pickup date, reach out to our team to confirm availability. These orders must be confirmed and paid for 72 hours in advance.

Rentable
Spaces
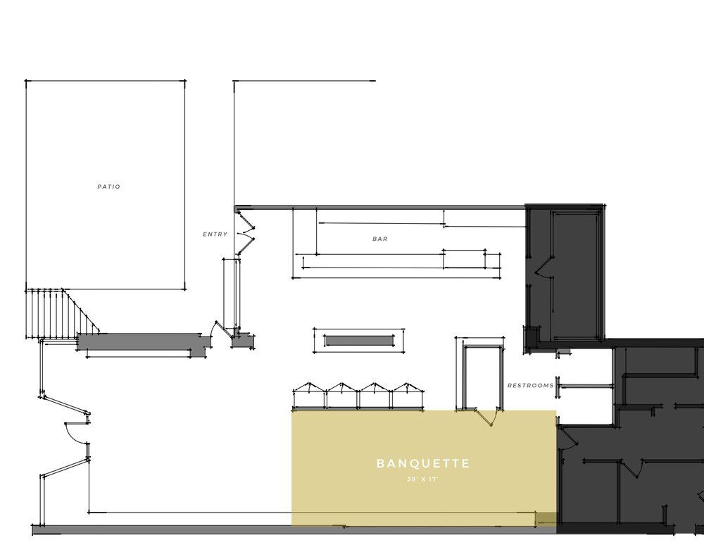
We offer three options for event rentals located amid our Bottle Shop. This mid-century modern-inspired space features drop lighting and an oak bench lining the wall in the dining area. We often feature an artist of the month, and part of their collection would be hanging in the space. The rooms include a mix of low and tall dining tables for seating, as well as access to the TV! Music runs through the shop from our record collection.
The Banquette space can comfortably host groups of up to 30 seated or 50 standing. This space utilizes two three-panel room screens to allow for visual privacy without fully closing the group off from the shop.
The Dining Annex can comfortably host groups of up to 58 seated or 80 standing. This area encompasses the full right side of the building.
For larger groups or events looking to spread out, you can also consider renting out the entire shop, which would include all indoor and outdoor space. Inside we can comfortably host groups of up to 66 seated or 100 standing, with additional seated and standing space on the patio on nicer days!
Ready to chat about your event? Submit an inquiry with the form below!
View Our Gallery Below!
Want to show off photos from your event? Send them over to our team and we'll add your celebration to the gallery!
Let's Connect!
If you're interested in booking an event or placing a catering order with State of Beer, send our events team a message. We'll ensure your event is the greatest celebration ever.
*Sending your information does not obligate you or us to the dates you select, but we'll try our best to make it work. We sincerely respect your privacy, so the information you share will not be used for purposes outside of responding to your request.














